A nostalgic but new accommodation experience in a 300-year-old Japanese-style house
Iya Valley in Tokushima Prefecture remains a village where Japan's fading traditional landscapes still linger vividly.
Layers upon layers of mountains, valleys carved deep over long ages.
Within this landscape, we have rebuilt the over 300-year-old thatched cottage “Chiiori” as lodging in the Tsurui settlement.
*Starting with check-ins on April 1, 2026, consecutive stays (two nights or more) will be the only type of stay accepted.
Living Room
A sense of "universal wildness" that transcends the image of "Japanese culture" that has been brewing for more than 300 years.
Before the tatami culture was introduced to Iya, the rustic wooden floors were smoked by the smoke and soot from the fireplace, and then wiped in the course of daily life until they took on a deep black glow. The floor, pillars, beams, and roof are all black. The light from the lantern placed in the corner of the room reflects softly on the floor.



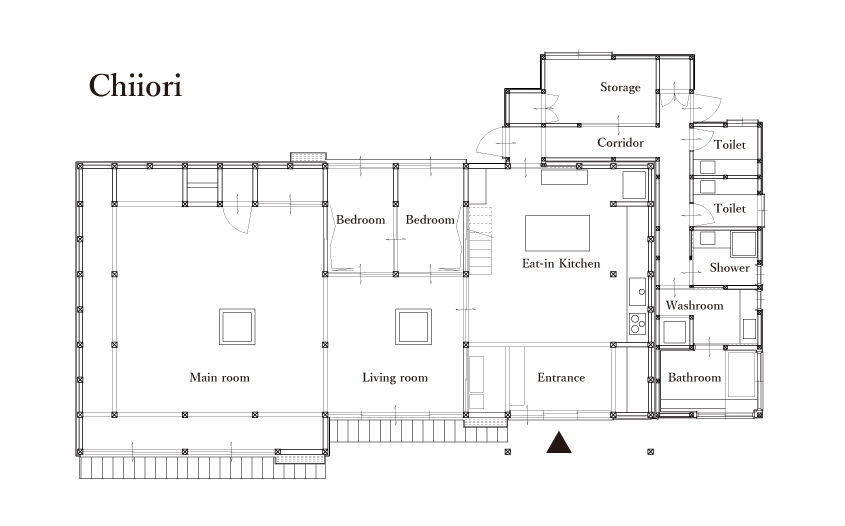
The main room with its irori hearth and living area leads to two private bedrooms beyond. While preserving interiors nearly unchanged for over 300 years, we ensure comfort with amenities like underfloor heating and an IH induction cooktop. There are no rules for how you use the rooms. Rest comfortably in the living area or relax in the bedrooms. Spend your time wherever you feel most at ease.
Dining Kitchen





Traditional interiors are filled with antiques Alex has gathered from all over Asia, creating a space that feels both deep and somehow calming. It features a system kitchen with an IH cooking heater and an island counter, one of Chiiori's highlights.
This counter was created by attaching a large solid Japanese chestnut board to a traditional kitchen chest.
Enjoy your meals using trays, serving dishes, or your favorite antique utensils.
Bathroom

Natural Wood Finished Wet Areas
In a departure from the jet-black world, the new white-wooden space has two restrooms, a shower room, and a large bathroom with a hinoki cypress bathtub. Comfortable modern facilities are essential to enjoy the 300-odd years of history. With these amenities, we can now fully enjoy and appreciate the traditions that our forefathers worked so hard to leave behind.



| Details | |
|---|---|
| Capacity | 10 persons (recommended 7 persons) |
| Floor Plan | Kitchen / Living room (with irori fireplace) / Main room (with irori fireplace) / 2 toilets / Bathroom / Shower room / Laundry room |
| Parking | Parking space for 3 cars |
| Regulations | Non-smoking inside a room / No pets allowed *Please don't cook at irori fireplace, only make a fire. |
| Equipment | Wi-fi / Speaker (Bluetooth) / Induction Heating (IH) / Refrigerator / Microwave / Pressure rice cooker / Floor heating / Wash machine / AED |
| Kitchen | Bowls / Plates / Glasses / Chopsticks / Spoons / Forks / Cooking utensils / Basic condiments (salt, pepper, soy sauce, oil and sugar) / Local brown tea of Iya |
| Amenities | ・Bathroom:Shampoo / Conditioner / Body soap / Towels / Bath mat / Cotton set / Toothbrush / Shaving / Hair dryer ・Others:Futons / Linens / Yukata (pajama) / Slipper / First aid kit |
VR
You can get an idea of the atmosphere by viewing VR images of the inside of the inn. Click (tap) "VR" in the lower right corner of the image to enlarge it.
Main room
Entrance・Kitchen
Bedroom
Bathroom






