築300余年の茅葺民家で
懐かしくも新しい宿泊体験
失われつつある日本の原風景を今も色濃く残す里、徳島県祖谷。
幾重にも重なる山々、長い歳月をかけて深く切り込まれた谷。
その一角にある釣井(つるい)集落に、築300余年の茅葺民家”篪庵”を宿泊施設として再建いたしました。
*2026年4月1日のチェックインより、原則連泊(2泊以上)滞在のみの受付とさせて頂きます。
リビングルーム
LIVINGROOM

300余年が醸し出す、
日本文化のイメージを超えた
「普遍的野生」の気配
祖谷に畳の文化がもたらされる以前、素朴な板張りの床は囲炉裏の煙や煤で燻され、そして日々の生活の中で磨き続けられ、 深く黒光りをするようになりました。床も、柱も、桁梁も、屋根も、黒。 部屋の隅に置かれた行灯の光が、柔らかく床に反射します。



囲炉裏のある表座敷と居間、その奥には三畳ほどの寝間が二部屋あります。300 余年前とほぼ変わらぬインテリアを残しながらも、床暖房やIHキッチンなどの設備で快適性を確保しています。お部屋の使い方に決まりはありません。座敷で広々とお休み頂くもよし、寝間でゆっくり休むもよし。お客様の過ごし安い場所で、過ごしたい時間をお過ごしください。
ダイニングキッチン
DINING KITCHEN





伝統的なインテリアにアレックスがアジア各地から集めて来たアンティークが並び、深みを持つと同時にどこか落ち着く空間。
IHクッキングヒーターを収めたシステムキッチンと、水屋箪笥に大きな栃の無垢板を取り付けたアイランドカウンターがあります。
御膳やお盆、お好きな古道具を使って食事をお楽しみください。
バスルーム
BATHROOM

漆黒の世界から一転
キッチンの奥にある増築部分は白木張りの新しい空間にお手洗い、シャワールーム、翌檜の湯船のある広めの浴室があります。 300 余年の歴史を楽しむにも、現代に於いて快適な設備は欠かせません。 快適な設備があるからこそ、今私たちは先達が大変な思いをしながら残してくれた伝統を存分に楽しむことができるのです。



| ご利用案内 | |
|---|---|
| 定員 | 10名様(推奨7名様程度) |
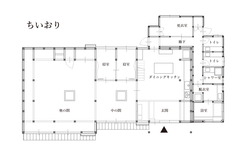
| 間取り | 台所(12畳間) / 居間(12畳間、囲炉裏付)/ 座敷(20畳、囲炉裏付) / トイレ2カ所 / 浴室 / シャワー室 / 洗濯室 |
| 駐車場 | 乗用車3台分程度 |
| 注意事項 | 室内禁煙 / ペット同伴宿泊不可 ※囲炉裏では調理不可。火起こし用の炭は別途要購入。 |
| 設備 | Wi-fi / スピーカー(Bluetooth対応) / IHクッキングヒーター / 冷蔵庫 / オーブンレンジ / 圧力IH炊飯器 / 床暖房 / ガスヒーター(冬季のみ) / エアコン(寝室) / シャワートイレ / 洗濯機 |
| キッチン | ・食器類:椀類 / 皿 / カップ / グラス / カトラリー一式 ・調理器具:両手鍋(大・小) / フライパン(大・小) / 土鍋 / カセットコンロ / ガスボンベ / やかん / ボウル(大・小)/ ザル(大・小)/ ピーラー / 包丁 / まな板 / 菜箸 / しゃもじ / 急須 / 茶漉し / レードル / ターナー / フライトング / ワインオープナー / 缶切り / おろし金 ・その他:基本調味料一式(塩、こしょう、醤油、サラダ油、みりん、砂糖)/ 台拭き / コースター / ラップ / ホイル / キッチンペーパー / スポンジ / 食器用洗剤/祖谷の番茶 |
| アメニティ | ・バス:シャンプー / コンディショナー / ボディーソープ / ハンドソープ / フェイスタオル / バスタオル / バスマット / コットンセット / 歯ブラシ / カミソリ / ドライヤー ・その他:浴衣 / 布団一式 / 座布団 / スリッパ / ティッシュペーパー / 蚊取り線香 / マッチ / 殺虫剤 / 救急セット / AED/ 小型懐中電灯 |
VR
宿内部のVR画像で室内をより詳細にご覧いただけます。
画像右下の「VR」をクリック(タップ)して拡大表示してご覧ください。
表座敷
玄関・キッチン
寝室
浴室





